Zu Content springen

 WG-BGH

Bei Temperaturen unter +2 °C und einer Luftfeuchte über 60 % (z. B. Nebel) besteht die Gefahr der Vereisung des Wetterschutzgitters. Um den Betrieb der lufttechnischen Anlage sicher zu stellen, kann das Wetterschutzgitter elektrisch beheizt werden. Dazu werden besonders temperatur- und UV-beständige Heizbänder an der Gitterkonstruktion fixiert. Für die vollautomatische Steuerung des Einfrierschutzes ist ein Eismelder oder eine andere Kombination aus Thermostat und Hygrostat zu empfehlen.

Die Auswahl und Installation der Steuereinrichtung sollte durch eine Fachfirma ausgeführt werden,  kann aber auch auf Wunsch von buschek lufttechnik mitgeliefert werden.

 

Alle wichtigen Details

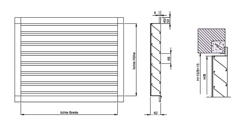
  • Material: Stahl verzinkt, Aluminium, Edelstahl

  • Wetterschutzgitter mit umlaufenden Frontrahmen

  • Rahmenmaß: 50 mm oder 40 mm

  • Rahmen auf Wunsch inkl. Bohrungen zum Anschrauben

  • Mauereinbaurahmen optional

  • Lamellen: strömungsgünstige, feststehende Lamellen

  • Gitter: verzinkt, Maschenweite 20 x 20 mm

  • Luftgeschwindigkeit: max. 5 m/s

  • freier Querschnitt: ca. 55 %

  • Jalousieklappen-Wetterschutz-Kombination möglich

  • Erhöhter Einbruchschutz optional

  • Individuelle Abmessungen bei Breite und Höhe, max. 2.000 x 2.000 mm

Laden Sie unsere aktuellen Kataloge, Preislisten, technischen Zeichnungen und Ausschreibungstexte schnell und unkompliziert herunter.

Plans and Pricing

Preise für Jalousieklappen

Starter

50 USD/Monat

Einige wichtige Features
  • Kosteneffizient
  • Basis Konfiguration
  • Einfache Montage

Professional

200 USD/Monat

Einige wichtige Features
  • Hochwertige Materialien
  • Optimale Leistung
  • Erweiterte Optionen

Enterprise

600 USD/Monat

Einige wichtige Features
  • Langlebige Qualität
  • Umfassender Support
  • Individuelle Anpassung

Warum buschek luftechnik

Maßgeschneiderte Lösungen

Jede Jalousieklappe fertigen wir individuell nach Ihren Abmessungen – ohne Kompromisse bei Passgenauigkeit oder Funktion. Ob Standardmaß oder komplexes Sonderformat: Sie erhalten exakt das Bauteil, das Ihre Lüftungsanlage benötigt.

Über 50 Jahre Erfahrung

Als inhabergeführtes Familienunternehmen in zweiter Generation kennen wir die Anforderungen von Planern, Architekten und Industriekunden. Sie erhalten keine Standardantworten, sondern fundierte Fachberatung – schnell, direkt und verbindlich.

Qualität aus eigener Fertigung

Unsere Jalousieklappen und Lüftungskomponenten werden vollständig in Deutschland entwickelt und produziert. Das bedeutet für Sie: geprüfte Qualität, kurze Lieferwege und ein Ansprechpartner, der für sein Produkt einsteht.

Kontaktieren Sie uns für optimale Lüftungslösungen